Project Rera No - UPRERAPRJ469558/12/2024
Rera Website : www.up-rera.in/projects
Authorised Channel Partner
Rera No. UPRERAAGT24285
Launch Date: 01-04-2025
Oro Dynasty
Account Name: ORI Collection A/C for Dynasty By ORO   |   A/C No. : 43378037770   |   Bank Name : State Bank of India Branch Address : 6A, Way Road, Gokhale Marg   |   Branch District : Lucknow   |   IFSC Code : SBIN0004166
That Money from customer must be deposited in Collection A/c only.

Oro Dynasty

Premium 2 & 3 BHK Apartments Starting Price ₹ 1.10 Cr*

Arjunganj, Lucknow

Enquire Now
By submitting I accept Privacy Policy.

About Oro Dynasty

Oro Dynasty is emerging as one of the most desirable addresses for homebuyers seeking modern comfort, refined elegance, and a prime lifestyle in Lucknow. Designed to offer a blend of luxury and practicality, this residential development brings thoughtfully crafted 2 & 3 BHK luxury apartments that redefine everyday living. With its strategic location, world-class architecture, and seamless connectivity, Oro Dynasty stands out as a dream destination for families who value both convenience and sophistication.

Situated in the heart of Arjunganj, Oro Dynasty Lucknow benefits from excellent access to key city hubs, educational institutions, healthcare facilities, entertainment zones, and commercial areas. Residents enjoy a peaceful, well-planned neighborhood while staying connected to essential destinations across the city. The project ensures that every detail contributes to a life of comfort, offering an ideal combination of serenity and accessibility.

The apartments at Oro Dynasty Arjunganj are meticulously designed to cater to the needs of modern families. Each home promises ample natural light, proper ventilation, and smart space utilization, creating an inviting environment for residents. Whether it’s the spacious living areas, well-planned layouts, or overall aesthetic appeal, every element adds to the charm of these luxury residences. The project also emphasizes safety, security, and long-term quality, making it a reliable choice for investment as well as end-use.

Oro Dynasty
Oro Dynasty
Your Perfect Home Awaits! Contact Our Experts To Know More About the Project.
Enquire Now

Amenities

Oro Dynasty Amenities

Club

Gymnasium

Sculpture Court

Kids Park

Swimming Pool

Club Drop Off Zone

Celebration Lawn

Kids' Pool

Guard Room

Jogging Track

Senior Citizen Lawn

Ample Car Parking

TAKE A 360 DEGREE TOUR OF THE PROJECT

sssss

Schedule A Virtual Tour With Our Expert

s Book Your Visit

Video

Oro Dynasty
Oro Dynasty

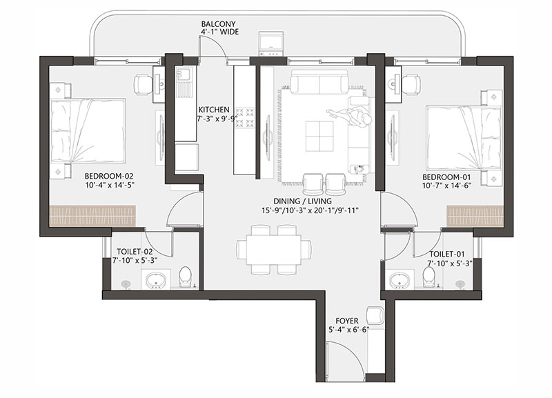
Floor Plan

Oro Dynasty Floor Plan
Oro Dynasty
Oro Dynasty
Oro Dynasty

Receive a digital copy of our brochure and learn more about our spacious residences.

DOWNLOAD BROCHURE

Location

Oro Dynasty Location Advantages
  • LULU Mall - 5 Min
  • Lucknow Cantonment - 1 Min
  • Sultanpur-Lucknow Hinghway - 0 Min
  • Phoenix Palassio Mall - 5 Min
  • Medanta Hospital - 5 Min
  • EKANA Cricket Stadium - 5 Min
  • Saheed Path - 2 Min
  • Kisan Path - 10 Min
  • Hazratganj - 10 Min
Oro Dynasty
Oro Dynasty Whatsapp
Oro Dynasty Call